Das neue Finke
Konzept
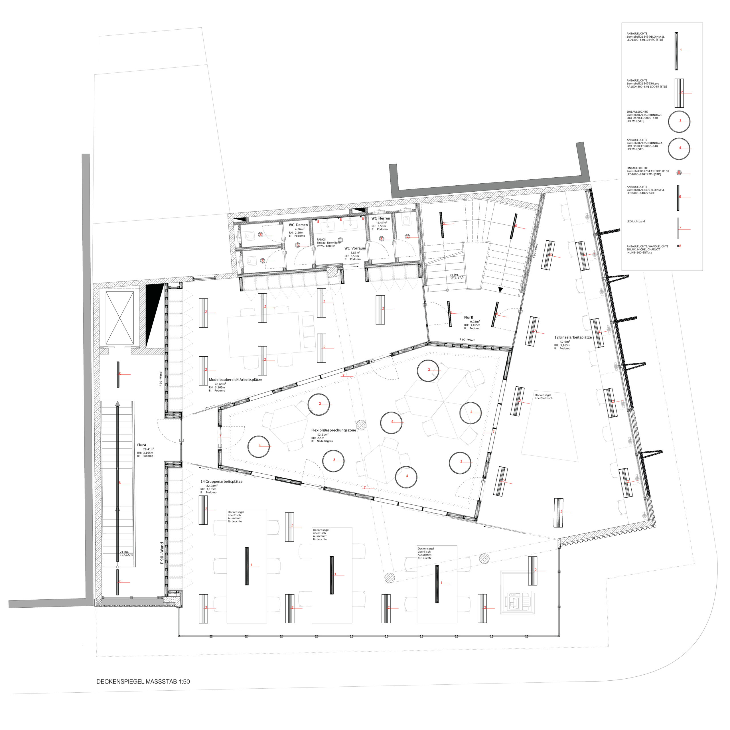
Das ehemalige Detmolder Modehaus Finke soll umgebaut werden. Im neuen Finke sind auf den Etagen 1 und 2 Arbeitsebenen für Studierende geplant.

Das EG soll weiterhin als Veranstaltungsfläche genutzt und durch einen Hochschulshop zur städtisch-zentralen Anlaufstelle der TH OWL werden.



Der von uns als eingeschobener Körper definierte Raum bekommt eine raumhohe Glasfront. In und um den zentralgeschaffenen Körper auf den Arbeitsebenen entstehen grosszügige Gruppen- und Einzelarbeitsplätze. Im Sitzen und Stehen finden wir unterschiedliche Arbeitspositionen. Das neue Fluchttreppenhaus bietet nicht nur einen direkten Zugang zu den Arbeitsplätzen, es entspricht auch den modernen Brandschutzrichtlinien. Somit verdient das Gebäude den Namen:
– Das neue Finke!


 
					 
				














